Atina
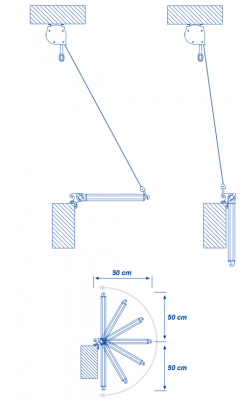
Folding arm awning, very strong, nice and easy to be installed and used as well. It can be fixed to the ceiling or to the wall. It’s provided with 50 cm aluminium arms that can be adjusted in the inclination. It can be opened and closed with manual override
Specifications
Type
With protective box
The protective cover protects the fabric of the awning when the awning is closed . We recommended it for visual reasons, and more important- protects the awning’s fabric from external influences .
Without protective box
This awning without protective box is suitable for places where there is some kind of eaves, patio eaves or some other protection, to guards the awning’s fabric as long as possible.
The ability to control
Manual

This type of awning is moved manualy easily with a special rope.
Maximum dimensions
Fabrics
Way of fixing
Send your question for awning Atina
If you have any questions for awning Atina feel free to contact us using the form below.




